Crie o modelo de construção adicionando elementos de arquitetura, elementos estruturais e sistemas MEP. Adicione opções de projeto e os componentes personalizados (famílias do Revit).
Vídeo: Adicionar linhas de eixo
Adicione linhas de eixo em um modelo para criar uma referência e uma estrutura para o projeto.
Vídeo: Rotacionar norte verdadeiro
Defina o ângulo de Norte verdadeiro, pois ele se relaciona ao ângulo do Norte do projeto em seu modelo. Use um objeto de referência para ajudá-lo a rotacionar a posição Norte.
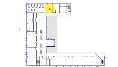
Vídeo: Usar imagens
Importe imagens para incluir diretamente em folhas para apresentação ou importe imagens para vistas de modelo para combinar com a geometria do modelo.
Vídeo: Trabalhar com a topografia vinculada
Após você vincular a topografia do engenheiro civil, será possível trabalhar com a topografia para incorporá-la no projeto de construção.
Vídeo: Calcular volumes de corte e preenchimento
Faça alterações no nivelamento da topografia (e as controle) quando o projeto necessitar que uma parte do sólido topográfico existente seja alterada.
Vídeo: Propagar extensões das referências
Após alterar a extensão 2D de uma referência, como um eixo ou um nível, use a ferramenta Propagar extensões para usar as mesmas extensões 2D em outras vistas.
Vídeo: Usar parâmetros globais
Use Parâmetros globais para estabelecer restrições variáveis em um projeto que pode ser controlado de uma localização centralizada.
Vídeo: Editar estruturas compostas
Especifique a espessura, o material e a função de camadas em uma estrutura composta (parede/telhado/piso/forro).
Vídeo: Usar esquemas de área
Crie um esquema da área e aplique-o a uma planta de área para analisar os requisitos de espaço e área.
Vídeo: Criar e dividir peças
Crie peças no modelo do Revit para dividir determinados elementos em seções individuais que podem ser tabuladas, identificadas, filtradas ou exportadas.
Vídeo: Introdução ao Projeto generativo
Saiba como você pode usar o Projeto generativo para Revit para gerar e explorar alternativas de projeto para seus desafios de projeto.
Vídeo: Criar um estudo do Projeto generativo
Especifique as metas, as restrições e outras entradas a serem usadas ao gerar alternativas de projeto (resultados) com o Projeto generativo para Revit.
Vídeo: Explorar os resultados de um estudo do Projeto generativo
Após a criação de um estudo com o Projeto generativo para Revit, explore os resultados para descobrir o que melhor soluciona o desafio do projeto ou use um resultado como base para um novo estudo.