Vídeo: Modelar linhas de tubulação
Defina os identificadores de P&ID, mapeie os elementos e adicione os segmentos de tubulação ao modelo.
Vídeo: Adicionar abafadores para peças de fabricação MEP
Ao criar um modelo de fabricação MEP, você pode adicionar, remover ou rotacionar lâminas integrantes do abafador usando os controles na tela que são específicos para abafadores.
Vídeo: Preencher as folgas em um modelo de fabricação
Utilize Aparar/Estender, Conectar rápido ou Rota e preenchimento para preencher as folgas em um modelo de fabricação para sistemas de duto e tubulação ou de contenção elétrica.
Vídeo: Criar um modelo de fabricação MEP no Revit
Use as ferramentas no Revit para criar um modelo que reflita a intenção de fabricação MEP para que seja possível compartilhá-lo com os desenhista da obra.
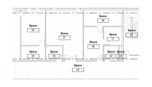
Vídeo: Usar a ferramenta Space Naming
A ferramenta Nomeação de espaço atribui nomes e números de ambientes de arquitetura a espaços MEP usados para a análise do desempenho da construção.