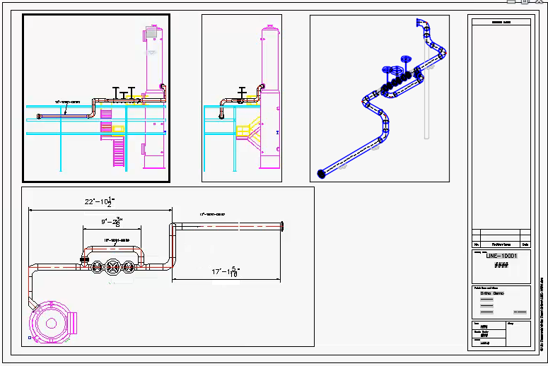
Можно создавать пользовательские ортогональные виды моделей Plant 3D и размещать их на 2D-чертежах.
Двумерные чертежи — это файлы DWG, каждый из которых может содержать несколько ортогональных видов с данными, извлеченными из моделей Plant 3D. Если исходная модель изменяется, можно обновить двумерные чертежи, чтобы они отражали изменения.
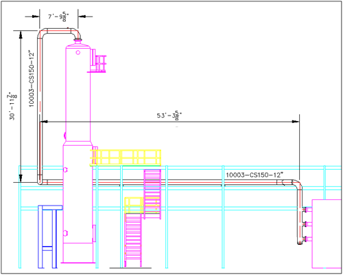
Двумерные чертежи показывают двумерные виды трубопроводов, клапанов, оборудования и металлоконструкций в моделях Plant 3D. Чертежи могут содержать аннотации, размеры, линии соответствия (только на виде в плане) и разрывы труб. Кроме того, на них можно отобразить или скрыть линии и объекты. В данном примере показан один вид.


Можно настроить пользовательский шаблон двумерного чертежа с основной надписью или использовать шаблон по умолчанию.
Чертежи проекта, содержащие ссылки на другие чертежи, можно использовать в двумерных чертежах. Внешние ссылки, не относящиеся к проекту, также доступны, но они отображаются только графически.