从二维剖面包络处理中排除材质定义的步骤

使用以下步骤可从二维剖面包络处理中排除已指定特定材质定义的构件。

创建二维剖面时,可以显示名为“包络处理”的剖面构件。包络处理是剖面线所剖切的所有对象面的并集,这些对象面合并成一个只有一个填充图案的构件。这是二维剖面常用的视图。

默认情况下,指定了材质定义的所有构件都包含在包络处理中。但是,您可能希望从包络处理中排除某些材质定义(如玻璃)。

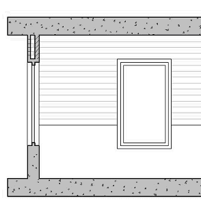
二维剖面包络处理,已排除玻璃(左)

  1. 依次单击“管理”选项卡 “样式和显示”面板 “样式管理器”

    将显示“样式管理器”,并且在树状视图中展开当前图形。

  2. 展开“多用途对象”,然后展开“材质定义”。
  3. 选择要修改的材质定义。
  4. 单击“显示特性”选项卡。
  5. 选择要显示这些修改的显示模式,然后选择“样式替代”。

    以粗体的显示模式为当前显示模式。

  6. 如有必要,请单击
  7. 单击“其他”选项卡。
  8. 选择“不画入二维剖面轮廓线内”。
  9. 单击“确定”。