特定のマテリアル定義が割り当てられているコンポーネントを 2D 断面の包絡処理から除外するには、この手順を使用します。
2D 断面図を作成すると、包絡処理という名前の断面コンポーネントを表示することができます。 包絡処理は、断面線分で切断され、1 つのハッチング パターンを表示する 1 つのコンポーネントに結合された、オブジェクトのすべての面の結合体です。 このビューは、2D 断面図で頻繁に使用されます。
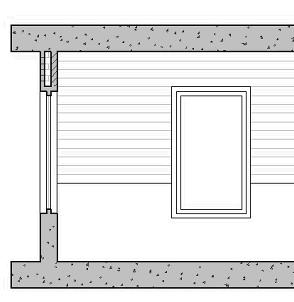
既定では、マテリアル定義が割り当てられているすべてのコンポーネントが包絡処理に含まれます。ただし、ガラスなどの一定のマテリアル定義を包絡処理から除外することもできます。

ガラスを除外した状態の 2D 断面の包絡処理(左)

をクリックします。スタイル マネージャが表示され、ツリー ビューに現在の図面が展開されて表示されます。
太字の表示レベルが、現在の表示レベルです。