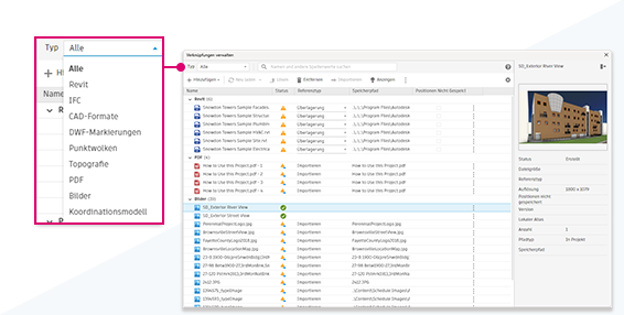
Verwenden von Positions- und Hauptteilnummern aus Advance Steel in Revit
Community-Idee: Erstellen Sie allgemeine Übersichtszeichnungen für Stahlprojekte mithilfe von Revit, um eine bessere Verbindung zwischen Entwurf, Fertigung und Konstruktion zu erzielen, indem Sie die Positions- und Hauptteilnummern aus Advance Steel importieren.