Видеоролик: «Настройка вида в перспективе»
Настройте вид в перспективе после его создания одним из трех способов: непосредственная манипуляция, использование штурвала, использование режима облета.
Видеоролик «Работа с видом в перспективе»
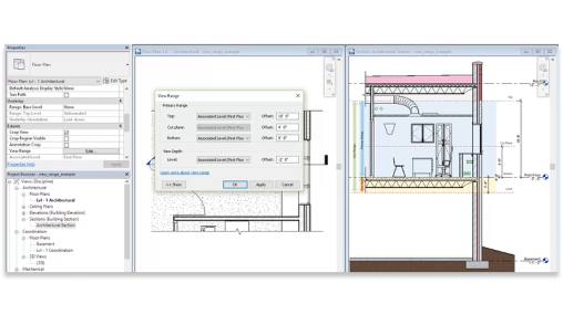
При работе на 3D-виде (ортогональном или виде в перспективе) можно добавить и изменить элементы здания для разработки и уточнения проекта.
Видеоролик: «Выбор полей спецификации»
При создании спецификации выберите поля, которые необходимо включить, с помощью вкладки «Поля» диалогового окна «Свойства спецификации».
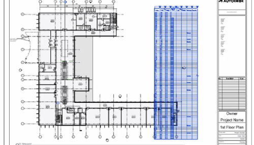
Видеоролик «Фильтрация спецификации по листу»
В этом учебном пособии показывается, как фильтровать элементы спецификации на основе видов, размещенных на том же листе, что и спецификация.
Видео: Вычисление итогов в спецификации
При создании спецификации вычислите и отобразите объемы и общую стоимость элементов или суммарную общую стоимость всех элементов.
Видеоролик «Создание внедренной спецификации»
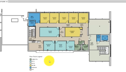
Внедренные спецификации используются для отображения информации о компонентах в категориях помещений, пространств, систем воздуховодов, систем трубопроводов или электрических цепей.
Создание последовательности узлов
Инструмент «Последовательность компонентов узлов» позволяет создавать и размещать несколько экземпляров элементов в модели.
Видео: «Экспорт анимации свободной камеры»
Чтобы продемонстрировать модель клиентам или участникам рабочей группы, экспортируйте запись свободной камеры в видеофайл (AVI) или серию изображений.
Видео: Настройка параметров экспорта DWG
Настройка параметров экспорта файлов DWG для совместной работы с участниками группы, использующими различные программы.
Видео: "Управление невидимыми линиями"
Использование инструмента «Показать невидимые линии» и параметров вида для управления скрытыми линиями на видах моделей.
Видео: Затемнение
Создание эффекта затемнения за счет постепенного слияния объектов с фоном по мере удаления от наблюдателя.
Видео: "Эскизные линии"
Использование эскизных линий для имитации нарисованного от руки эскиза.
Видеоролик: «Создание и документирование сборок»
Несколько элементов можно объединить в единую сборку, которую затем можно независимым образом включать в спецификацию, маркировать и фильтровать.