뷰에 언더레이를 작성하여 모델의 다른 평면도에서 형상을 참조합니다.
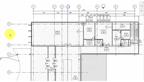
모델의 요소가 적절히 표시되도록 뷰 범위의 평면을 조정합니다.
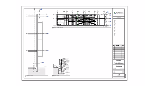
건물 모델의 입면도를 작성합니다.
단면 및 콜아웃 도구는 상세정보를 작성할 모델의 추가 뷰를 작성합니다.
3D 뷰에서 작업할 때 레벨을 참고하고 필요한 경우 뷰에서 레벨 헤드를 조정합니다.
투시 뷰는 작성한 후 3가지 방법(직접 조작하기, SteeringWheel 사용하기 또는 비행뷰 모드 사용하기) 중 하나를 사용하여 조정할 수 있습니다.
3D 직교 뷰 또는 투시도에서 작업하는 경우 건물 요소를 추가 및 수정하여 설계를 개발하고 다듬을 수 있습니다.
하나의 뷰에서 더 쉽게 모델 작업을 하도록 투시도 자르기를 해제합니다.
구획 상자를 적용하여 뷰에 표시된 형상을 제한합니다.
범례 뷰를 작성하여 모델에서 그래픽 규칙을 전달합니다.
작업을 간소화하고 지원하려면 하나 이상의 모니터에 열려 있는 모델의 뷰를 정렬합니다.
SteeringWheels를 사용하여 실시간으로 모델을 탐색합니다.
시트에 배치된 뷰를 모델에서 배치되지 않은 다른 뷰로 교환합니다.
뷰 리스트를 작성하여 모델의 뷰 설정을 체크하고 확인합니다.
뷰 유형을 작성한 다음, 해당 유형을 사용하여 작성한 새 뷰에 템플릿을 지정할 수 있습니다.
객체 스타일과 가시성 및 그래픽 재지정을 사용하여 모델에서 요소가 표시되는 방법을 제어합니다.
자르기 영역을 사용하여 뷰에 표시되는 요소를 제어합니다.
스케치 선을 사용하여 작업에 손으로 스케치한 모양을 표현합니다.
뷰어와의 거리를 늘려 객체를 배경 색상(페이드)에 혼합하여 깊이 효과를 만듭니다.
은선 표시 도구 사용 및 뷰 매개변수를 사용하여 모델 뷰에서 은선을 제어합니다.
요소 변위 도구를 사용하여 모델을 분해된 조합 다이어그램으로 나타냅니다.
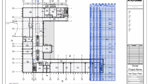
일람표를 작성할 때 일람표 특성 대화상자의 필드 탭을 사용하여 포함할 필드를 선택합니다.
이 튜토리얼에서는 프로젝트 일람표의 필드에 필터를 추가하는 방법에 대해 알아봅니다.
이 튜토리얼에서는 일람표와 동일한 시트에 배치된 뷰를 기준으로 일람표의 요소를 필터링하는 방법을 알아봅니다.
일람표를 작성할 때 양과 총 요소 비용 또는 모든 요소의 총계 비용을 계산하고 표시할 수 있습니다.
가구 일람표를 작성할 때 유형 및 인스턴스(instance) 특성을 사용하여 모델 요소와 연관시키는 방식으로 이미지를 포함할 수 있습니다.
포함된 일람표를 사용하여 룸, 공간, 덕트 시스템, 파이프 시스템 또는 전기 회로 카테고리의 구성요소에 대한 정보를 표시할 수 있습니다.
일람표를 작성하거나 수정할 때 일람표 특성 대화상자를 사용하여 단일 일람표 셀에서 두 개 이상의 매개변수를 결합할 수 있습니다.
노트 블록(주석 일람표)을 추가하여 모델에서 번호가 매겨진 일반 참고 시트를 작성할 수 있습니다.
공유 매개변수를 사용하여 요소에 대한 키 일람표를 작성합니다.
재료 유형, 수량 및 비용에 대한 정보를 보고하는 사용자화된 일람표를 작성할 수 있습니다.
상 필터는 요소 가시성을 제어하여 프로젝트의 각 상에 대한 정보를 전달합니다.
상 상태 컨트롤은 뷰에서 모델 요소의 시각적 표현을 제어합니다.
구성 가능한 대체 치수 단위를 기본 단위와 함께 표시합니다.
요소를 이동하거나 재지정을 작성하여 영구 치수 값을 변경합니다.
뷰 및 시트에 주석을 달 때 필요에 맞게 문자 형식을 지정합니다.
기호 메뉴, Windows® Character Map® 또는 키 입력 문자열을 사용하여 문자 참고에 특수 문자를 추가합니다.
키노트 매개변수를 사용하여 상세 구성요소 패밀리에 주석을 답니다.
샘플 키노트 문자 파일을 탐색하고 모델이 필요한 카테고리 항목을 추가할 수 있습니다.
모델의 요소 태그에 표시되는 정보 유형을 수정합니다.
반복 상세 구성요소 도구를 사용하여 모델에 여러 요소 인스턴스를 작성하고 배치합니다.
선 기반 상세 구성요소를 사용하여 선형 기반 상세 요소에 대한 시작점과 끝점을 선택할 수 있습니다.
3D 상세정보를 사용하여 모델의 요소를 표시합니다.
모델에서 뷰를 복제하여 다른 종류의 정보를 표시합니다.
파일을 사용하여 시스템 패밀리 및 2D 드래프팅 뷰를 모델로 가져오는 방법에 대해 알아봅니다.
시트를 작성하고 시트에서 뷰를 추가 및 배치합니다.
가이드 그리드를 사용하여 시트마다 동일한 위치에 뷰를 정렬할 수 있습니다.
패밀리 편집기를 사용하여 레이블 및 수정기호 테이블이 있는 사용자화된 제목 블록 배치를 만듭니다.
뷰 제목 및 매개변수를 수정하여 사용자화된 프로젝트 정보를 표시합니다.
일람표/수량 수정 탭을 사용하여 일람표 및 일람표에 표시되는 정보의 모양을 수정합니다.
시트 리스트를 사용하여 프로젝트의 시트에 대한 일람표를 작성하고, 리스트의 시트를 자리 표시자로 미리 채울 수 있습니다.
사용자 번호 매기기 스키마를 작성하여 다른 수정기호 순서를 추적할 수 있습니다.
수정기호 워크플로우를 사용하여 모델의 변경사항을 추적합니다.
프로젝트 또는 시트 중 어떤 기준으로 모델 수정기호 번호 매기기 할 지에 따라 구름형 수정기호 태그 번호 매기기가 영향을 받습니다.
구름형 수정기호 주석을 사용하여 수정된 도면 구획을 표시합니다.
IES 파일을 사용하여 Revit 모델에서 광원의 강도 및 스타일을 정의합니다.
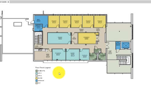
모델에서 룸의 매개변수를 기반으로 평면도 또는 구획도에 색상표를 추가할 수 있습니다.
모델을 팀 구성원이나 클라이언트에게 프리젠테이션할 수 있도록 보행 시선 애니메이션을 작성하고 편집합니다.
클라이언트나 팀 구성원에게 모델을 프리젠테이션하려면 보행 시선을 비디오(AVI 파일) 또는 일련의 이미지로 내보냅니다.
DWG 파일을 내보내는 사용자화된 설정을 템플릿 프로젝트에 저장하면 이를 재사용할 수 있습니다.
PDF 내보내기를 사용하여 모델의 뷰 및 시트를 PDF 파일로 내보낼 수 있습니다.
프린터를 설정하고 뷰 및 시트를 인쇄할 설정을 수정합니다.