이 튜토리얼 1부에서는 프로젝트를 시작하고 건물 모델의 기초, 상점 바닥, 상단 및 하단 파라펫의 레벨을 작성합니다.
이 튜토리얼 2부에서는 외부 벽과 내부 벽을 배치하고, 자르기/연장 도구를 사용하여 복도의 개구부를 작성합니다.
이 튜토리얼 3부에서는 지형 솔리드 도구를 사용하여 대지를 작성하고 모델의 외부 벽을 기반으로 건물 패드로 채우기를 추가합니다.
이 튜토리얼 4부에서는 건물의 상점 룸 영역에 메자닌을 작성합니다.
이 튜토리얼 5부에서는 입구 부분에 돌출부가 있는 평지붕과 경사진 지붕을 작성합니다.
이 튜토리얼 6부에서는 문 패밀리를 로드하고, 문 유형을 변경하고, 문을 배치하고, 해당 방향을 변경합니다.
이 튜토리얼 7부에서는 모델에 창을 배치, 복제, 수정 및 정렬합니다.
이 튜토리얼 8부에서 상점 입구에 커튼월을 배치합니다.
이 튜토리얼 9부에서는 평면도에서 모델에 계단과 난간을 추가합니다.
이 튜토리얼 10부에서는 단면도, 외부 벽의 콜아웃 뷰 및 벽의 상세 콜아웃을 작성합니다.
이 튜토리얼 11부에서는 치수를 사용하여 피쳐 벽의 위치를 나타내고 건물 폭 및 길이를 표시합니다.
이 튜토리얼 12부에서는 뷰별 주석을 모델에 배치합니다.
이 튜토리얼 13부에서는 시트를 작성하고, 뷰를 추가하고, 뷰 배치를 수정하고, 제목 블록 형식을 수정합니다.
인스턴스 매개변수 및 유형 매개변수는 모델에 있는 모든 요소의 측면을 제어합니다.
한 뷰의 요소 변경사항이 다른 모든 뷰에 표시되는 방식에 대해 알아봅니다.
모델 요소와 주석 요소를 모델 뷰에 배치하는 방법에 대해 알아봅니다.
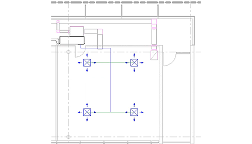
모델에 있는 관련 요소 간의 논리적 관계를 정의하기 위해 MEP 시스템을 작성하는 방법에 대해 자세히 알아봅니다.
사용자 인터페이스를 사용 및 사용자화하여 생산성을 높이고 작업 흐름을 단순화하는 방법을 배웁니다.
Revit 홈을 사용하여 로컬로 저장한 파일 네트워크 또는 Autodesk Docs에 저장한 파일을 열 수 있습니다.
개별 워크플로우에 더 적합하도록 사용자 인터페이스를 제어하고 사용자화합니다.
요소의 형상을 정의하는 데 사용할 수 있도록 프로파일 패밀리를 작성하고 프로젝트에 로드합니다.
Revit의 특성 팔레트를 사용하여 모델의 요소에 대한 인스턴스 특성을 보고 수정할 수 있습니다.
검색을 사용하여 유형 선택기, 특성 팔레트 및 대화상자의 긴 옵션 리스트에서 더 쉽게 선택할 수 있습니다.
사용자 인터페이스의 팔레트를 워크플로우에 가장 적합한 방식으로 배열합니다.
설정을 사용하여 모델에서 요소를 선택할 수 있는 방법과 여러 유형의 요소를 두 번 클릭할 때 발생하는 동작을 제어합니다.