All elements that are not in the active workset can display as gray in the drawing area.
Temporary elements, such as temporary dimensions and controls, do not display in gray. This option has no effect on printing, but it helps to prevent adding elements to an undesired workset.
To visually distinguish the active workset
- Click Collaborate tab
Manage Collaboration panel
(Worksets).
- In the Worksets dialog, select Gray Inactive Workset Graphics, and click OK.
Alternatively, click Collaborate tab
Manage Collaboration panel
(Gray Inactive Worksets).
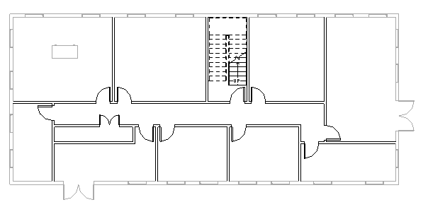
Architectural Example
The following image shows a project floor plan where the Interior Layout workset is active, and all other worksets are gray.

Electrical Example
The following image shows a project floor plan where the Electrical Layout workset is active, and all other worksets are gray.

