Video: Documentazione e presentazione di un progetto
È possibile creare, annotare e rifinire la documentazione del progetto per comunicare l'intento progettuale a membri del team, consulenti, clienti e fornitori.
Video: creazione di un sottostante
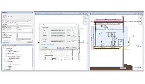
È possibile creare un sottostante ad una vista come riferimento alla geometria da altre viste di pianta del modello.
Video: Creazione di viste del modello
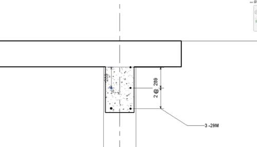
Gli strumenti Sezione e Dettaglio consentono di creare viste aggiuntive del modello per la creazione di dettagli.
Video: creare una vista prospettica
Inserire una cinepresa nella vista prospettica e regolare la profondità della vista, il contorno e l’angolo della cinepresa.
Video: Regolazione di una vista prospettica
È possibile regolare una vista prospettica dopo averla creata utilizzando uno dei tre seguenti metodi: manipolazione diretta, utilizzo di SteeringWheels o utilizzo di Modalità volo.
Video: Utilizzo di una vista prospettica
Quando si lavora in una vista prospettica o ortogonale 3D, è possibile aggiungere e modificare gli elementi dell'edificio per sviluppare e perfezionare il progetto.
Video: Filtraggio OR multicategoria
È possibile selezionare qualsiasi parametro da una categoria di elementi quando si utilizza una condizione OR in un filtro.
Video: lavorare con viste spostate
Illustra come utilizzare lo strumento Sposta elementi per rappresentare i modelli come diagrammi di assiemi esplosi.
Video: Selezione di campi per un abaco
Quando si crea un abaco, selezionare i campi da includere utilizzando la scheda Campi della finestra di dialogo Proprietà abaco.
Video: calcolo dei totali in un abaco
Quando si crea un abaco, è possibile calcolare e visualizzare quantità e costo degli elementi totali o un costo generale di tutti gli elementi.
Video: Creazione di un abaco integrato
Utilizzare gli abachi integrati per visualizzare informazioni sui componenti nelle categorie di locali, vani, sistemi di condotti, sistemi di tubazioni o circuiti elettrici.
Video: combinazione di parametri in un abaco
Durante la creazione o la modifica di un abaco, combinare due o più parametri in una singola cella dell'abaco utilizzando la finestra di dialogo Proprietà abaco.
Video: duplicazione di viste
È possibile creare duplicati di viste nel modello per presentare diversi tipi di informazioni.
Video: Utilizzo del file RVT come libreria
Sono fornite informazioni su come può essere utilizzato un file per importare le famiglie di sistema e le viste di disegno 2D in un modello.
Video: esportazione di un'animazione
Per presentare il modello ai clienti o ai membri del team, esportare un'animazione in un video (file AVI) o in una serie di immagini.
Video: definizione profondità
È possibile creare l'effetto profondità facendo sfumare gli oggetti sul colore di sfondo man mano che si allontanano dal visualizzatore.
Video: linee di schizzo
Utilizzare le Linee di schizzo per conferire al lavoro l'aspetto di un disegno manuale.
Video: creare e documentare assiemi
È possibile combinare più elementi di costruzione in un unico assieme, che può quindi essere etichettato, incluso in un abaco e filtrato come elemento indipendente.